Property Details

Be part of this new development, and make your mark on Cape Road!

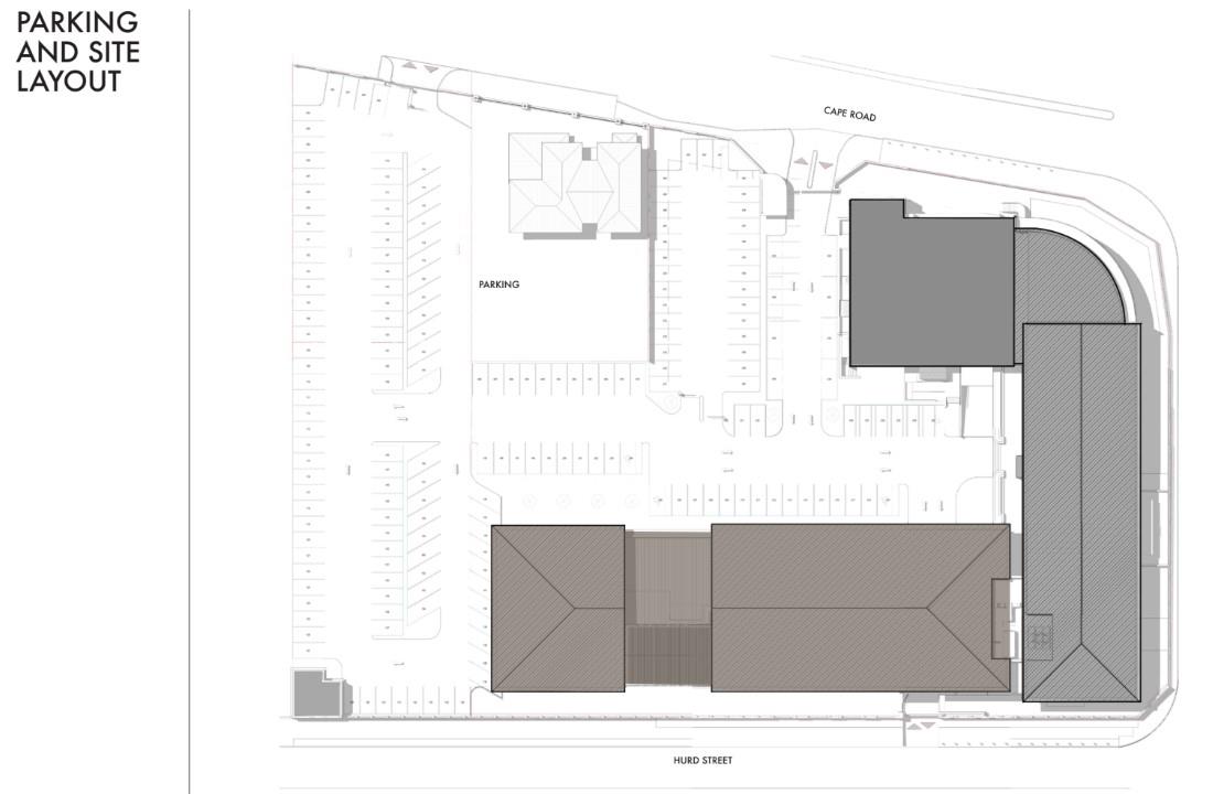
This business park has excellent exposure, being a corner site onto the constantly busy Cape Road, Port Elizabeth.

Key Features:

✅ Brand-New Development – A modern office space built to the highest standards, ensuring a premium and professional business environment.

✅ Flexible Layouts – Designed to accommodate various business needs, from corporate offices and professional services to creative workspaces.

✅ Prime Location – Situated on Cape Road, a key commercial corridor with excellent visibility, accessibility, and proximity to major business hubs.

✅ Sustainable & Energy-Efficient – Powered by renewable energy, including solar PV, ensuring a cost-effective power supply.

✅ Back-up Power - Integrated back-up generators are included for continuous power.

✅ Ample Parking & Accessibility – Convenient on-site parking for staff and clients, with easy access to public transport and major road networks.

✅ Secure & Professional Environment – Designed with security and business efficiency in mind, offering a safe and productive workspace.

This state-of-the-art commercial office space is ideal for businesses looking to establish themselves in a prestigious and high-visibility location with sustainable energy solutions.

Base rental R160/sqm plus VAT, plus Op costs.

Contact me for more information!

Property Features

  • Property Type Office
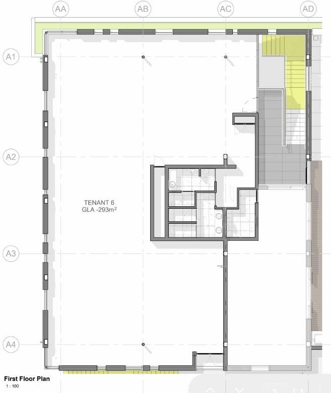
  • Building Size 293m²
  • Stand Size

Location

Enquiry

Interested in property 2432638? Please fill in your details below, and we will contact you as soon as possible.

By clicking on submit, you agree to our privacy policy

Property Alerts

Receive email alerts for properties matching your criteria.

Subscribe